

O cliente nos procurou com um desafio específico de curvatura envolvendo umchapa de aço fina com estrutura de nervuras, exigindo tanto eficiência quanto consistência dimensional.
Os principais requisitos do cliente incluíam:
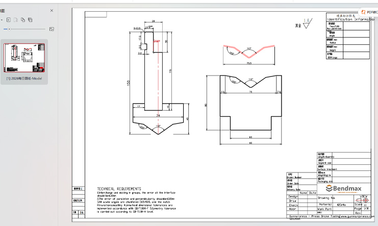
Material:Chapa de aço,1,2 mm de espessura
Máquina: Prensa dobradeira Amada
Abertura inferior da matriz: V = 60 mm
Método de formação: Formação em um único golpe (dobra em uma única etapa)
Característica da peça:Perfil multiangular comnervura de reforço (estrutura de enrijecimento)
Expectativa de qualidade:
Ângulos de flexão estáveis
Formação limpa sem distorção
Formato consistente das costelas
Alta repetibilidade para produção em lotes
Porque a peça de trabalho inclui Geometria das nervuras e múltiplos ângulos de flexão, os punções retos padrão não eram adequados para obter a forma desejada em uma única operação.
Após analisar o desenho, nossa equipe de engenharia identificou vários desafios importantes:
A presença de um costela (elemento de reforço) Aumenta a resistência à conformação e altera o fluxo do material durante a dobra. Sem o suporte adequado das ferramentas:
Isso reduziria a eficiência da produção e aumentaria o tempo de ciclo.
O cliente solicitou especificamente formação de um único golpe, significado:
Isso requer ferramentas de perfil personalizado, não socos comuns.
Com Aço de 1,2 mmA seleção incorreta de ferramentas pode causar:
O suporte adequado dos ombros da matriz é essencial.
Após avaliação técnica, nossos engenheiros recomendaram o uso de Ferramentas personalizadas para curvatura de nervuras, especificamente projetado para corresponder ao perfil mostrado no desenho.

Configuração de ferramentas recomendada:
Tipo de ferramenta:Conjunto de punção e matriz para dobrar nervuras
Compatibilidade da máquina:Sistema Amada
Abertura da matriz inferior:V = 60 mm
Método de formação:Perfil de um único sucesso se formando
Apoio material:Otimizado para conformação de chapas finas
Correspondência de perfis:Geometria personalizada seguindo o formato da nervura parcial
Este projeto de ferramental permite que a nervura e os ângulos sejam formados simultaneamente em um único golpe de prensa.
A estrutura das costelas mostrada no desenho inclui:
Punções padrão não conseguem controlar com precisão a deformação em tais estruturas. Ferramentas de curvatura de nervuras proporcionam:
A ponta do punção, com design especial, suporta a geometria da nervura e evita o colapso durante a conformação.
Com geometria de ferramentas compatível:
A fabricação personalizada de ferramentas para costelas garante:
Após a implementação das ferramentas de curvatura de nervuras recomendadas, o cliente obteve os seguintes resultados com sucesso:
As peças finais fabricadas atenderam aos requisitos dimensionais e funcionais do cliente.

Este caso demonstra que ao dobrar peças com estruturas de reforço ou de reforçoSelecionar o perfil de ferramental correto é crucial.
Para componentes que requerem:
Ferramentas personalizadas para curvatura de costelas é geralmente a solução mais confiável.
leave a message
Scan to wechat :
Scan to whatsapp :